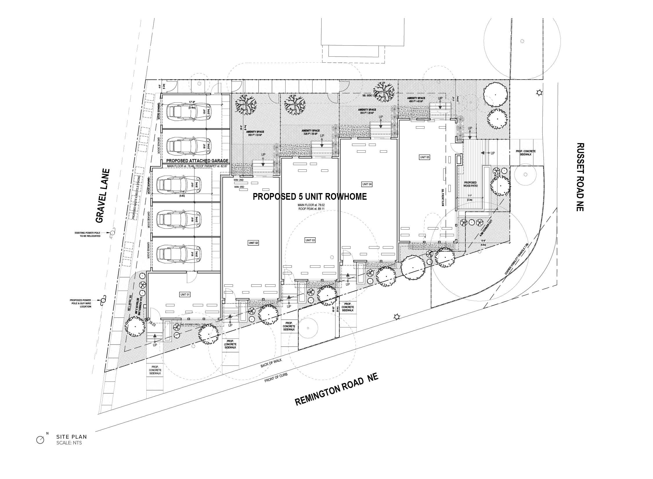
Russet Road

Client

Eagle Crest Construction

Number of units

5

Status

2019 - 2022

FAAS has partnered with Eagle Crest Construction in order to provide a community engaged Rowhome in the neighbourhood of Renfrew. Working closely with stakeholders, FAAS has constructed an architecture that responds to the various needs of the community while increasing density of the neighbourhood. Materials express a palette that reference Renfrew’s historic palette, while the units turn the boulevard corner in a way that unites the homes into the fabric of the community.

Related Projects