CH – Park 8

Client

Eagle Crest Construction

Number of units

8 Units + 8 Secondary Suites

Status

2020 - 2022

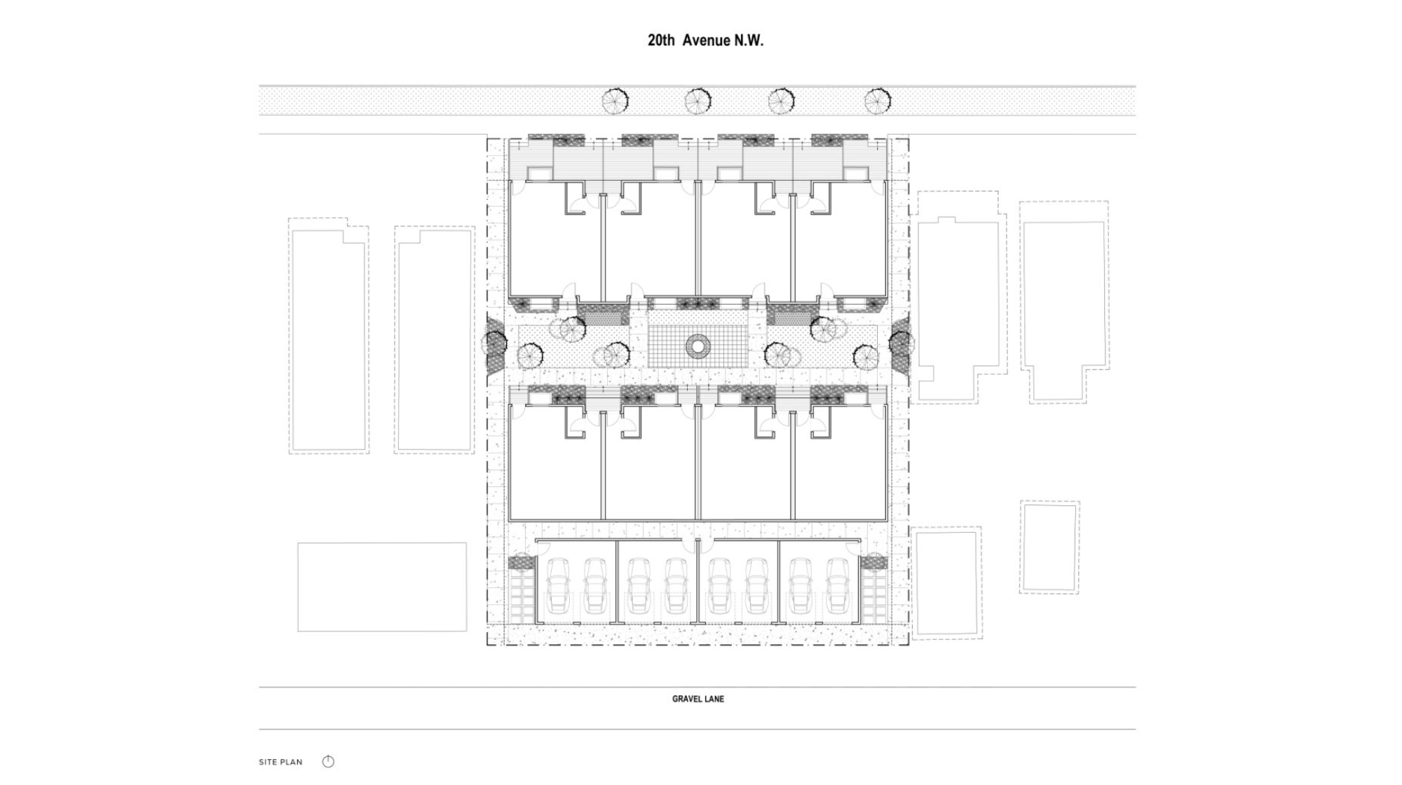
FAAS has partnered with Eagle Crest Construction to bring a new 8+8 two storey rowhome to the community of Capitol Hill. This new development aims to increase the available housing in the established neighborhood with easy access to transportation, retail, commercial services, recreation, and community services.

CH Park 8 Site Plan

Related Projects