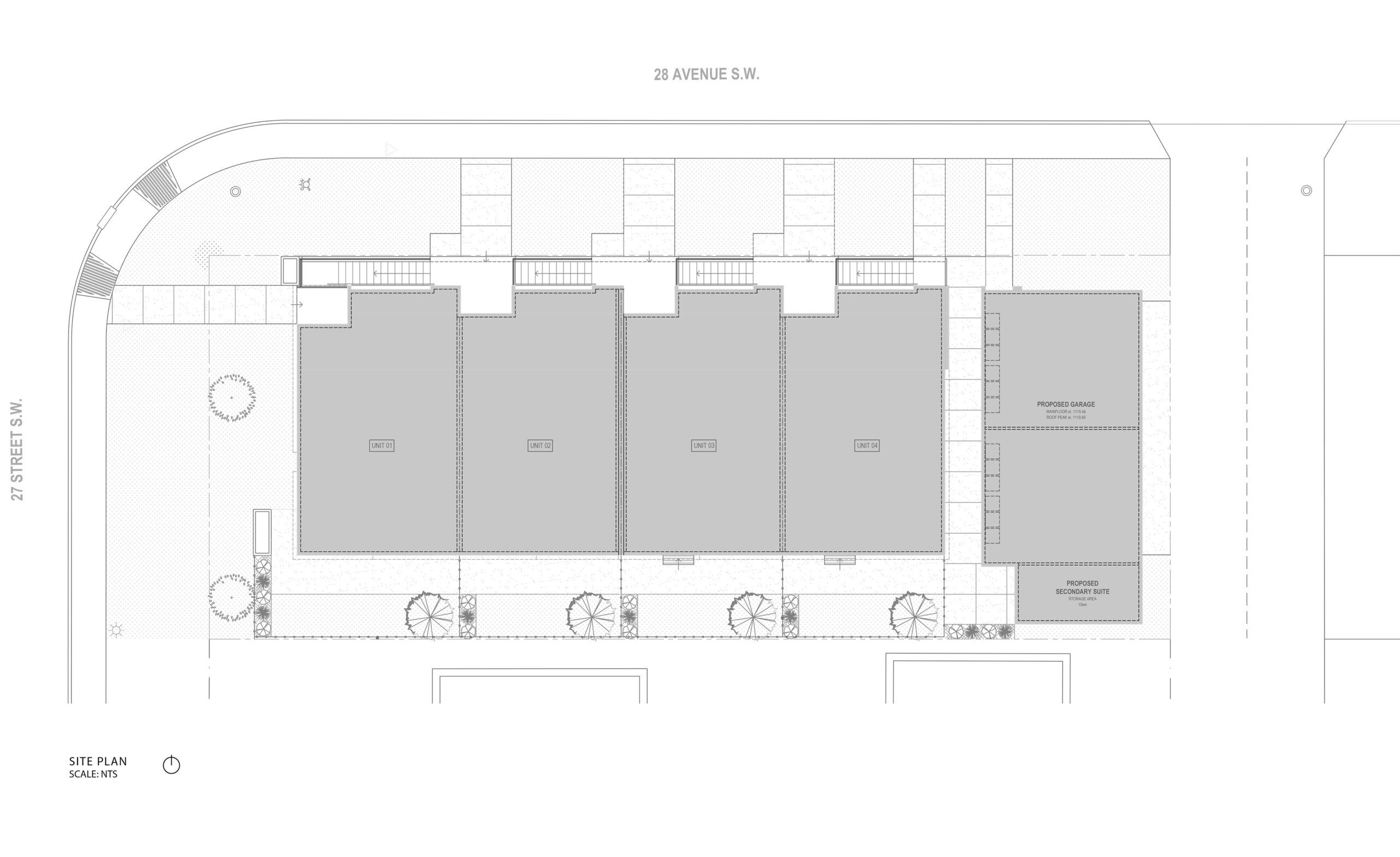
2715 Killarney

Client

RNDSQR

Number of units

4

Status

2019 - 2021

FAAS has partnered with RNDSQR in order to provide a new 4 unit rowhome development in the neighborhood of Killarney Glengarry. The two storey rowhome aims to encourage the increase of housing in established communities, providing easy access to local amenities such as shopping, schools, transit, and community services. The gabled roof design and local material palette blend the homes into the fabric of the community.

Related Projects